RECTO VERSO
Extension / Réhabilitation :
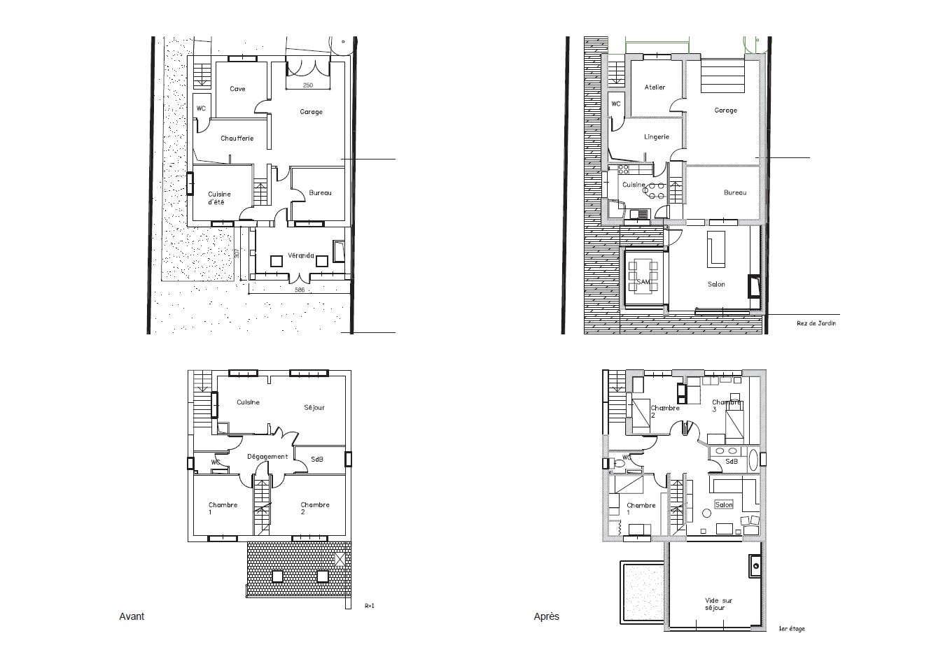
170 m² SHON
Extension 40m²
Réhabilitation 130m²
Cette ancienne maison de maraîchers des années 1960, orientée Nord/Sud, comprenait un sous-sol en rez-de-jardin, un rez-de-chaussée surélevé et des combles non aménagés. L’idée a été de créer un séjour double hauteur en rez-de-jardin orienté plein sud et d’y installer la cuisine, ainsi les pièces principales de jour sont plein sud et donnent sur jardin. Les chambres des enfants sont rassemblées au 1er étage (ancien RDC) et le salon familial est en mezzanine sur le séjour et profite également de la vue sur le jardin grâce à la baie vitrée du séjour. La protection solaire se fait par un écran végétal naturel qui est un arbre déjà en place à l’origine






